项目名称:郑州融信·城市之窗示范区
项目业主:融信中国
建筑设计:JHD建筑
项目地点:河南 郑州
项目规模:25万方
设计时间:2017年
项目阶段:已建成(示范区)


开放之───窗
中原大地、郑东中心。天地之中,谓之中原;中原之心,定之郑东;郑东之极,立于文旅;文旅核芯,归于绿博。环环相扣的核心之势中,如同城市发展激荡而起的涟漪,主导并引领着郑东乃至中部的进阶与发展,郑东绿博则凭借文旅产业定位的明确,成为辐射中部六省的当红名片。 本项目未来发展区位优势明显,地处郑州市东五环绿博组团内,周边有正在建设的绿博园,奥特莱斯,华谊电影小镇等大型文旅产业,科技研发,宜居社区等。距离市中心27km,距离高铁东站16.4km,距郑东国际机场30KM。

融合之───形

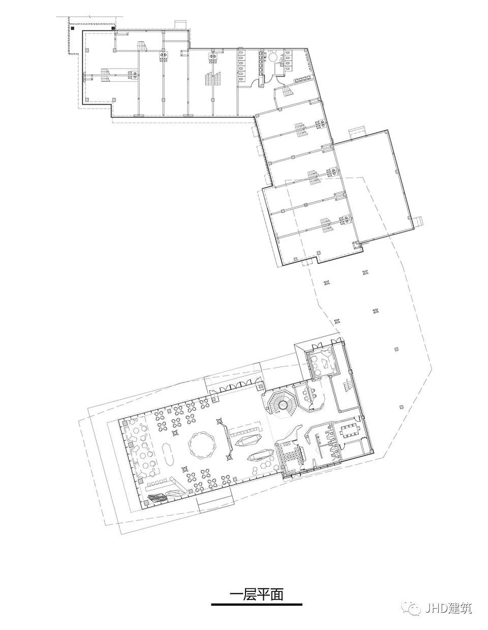
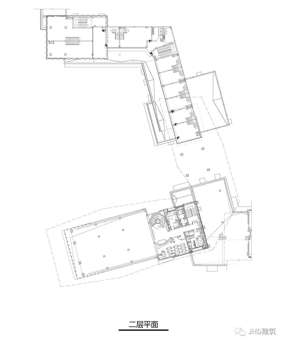
本项目的示范展示区布局在项目用地的西南角,建筑面向街角围合布局展开。退让串联,呼应城市。销售展示中心、社区配套商业,以及整个项目的主入口共同围合出一个开放热闹的城市广场。整体布局为一个“U”字型的建筑组团,在文通路、宝兴街角围合成一个内聚式的城市广场,建筑呈半围合的开放姿态环抱展开,同时,沿内聚城市广场的中轴,一条东西向的轴线沿入口广场向基地内部延伸, 示范区主入口空间退让城市道路一定的距离,朝向广场内部设置,加之景观的遮挡处理,远离车流的吵闹。使内凹的广场既成为整个社区的主要入口、形象展示空间,又成为面向城市的市民广场,市民,居民,商家的怡人生活画面随之徐徐展开。


鲸吞之───势



郑东之窗,对话未来。城市南侧的销售展示中心建筑在街角抽象形成视窗的形态。“视窗”在街角面向郑东新区方向,向上扬起的头部,其建筑的姿态大有鲸吞海纳之势。“城市之窗”采用大面积的透明落地玻璃,建筑之内的安静,城市街角的律动,满足看与被看的需要。建筑的顶部向东延续形成一条飘带连接项目主入口及北侧商业街,并在广场中心处形成18m高的主入口雨棚,宛若游龙盘踞在中原大地,带来震撼的视觉效果。飘带下的北侧商业采用简单的形体咬合虚实对比,沉稳大气,更突显出销售中心建筑的灵动。同时这个金属的外壳也向下翻转,自然形成建筑的外立面的一层表皮,这层金属表皮也与透明玻璃形成了虚实变换的对比。


虚实之───幻
交错光影,变幻未然。其灵动大气的建筑形态展示了旺盛的生命活力,而层次丰富的建筑立面处理则显示了建筑人性化的尺度。金属质感的“飘带”材质选择穿孔铝板与铝板的渐变错拼,并且铝板的宽度在立面上呈现退晕的变化,给人带来视觉上的耳目一新。北侧的商业建筑渐变的格栅、错拼的背漆玻璃、凸凹间隔出现的“马赛克”幕墙处处彰显着时尚与变幻。精致的材料搭配比例,基于具体的建筑表现,通过材料虚实的对比,表面质感,色彩的变幻,取得精致现代的外观效果,使建筑主体具有了细腻情感的起伏。







色彩之───炫
简洁色彩,时尚明快。售楼中心建筑以稳重的金属赭石色铝板搭配通透的超白玻璃;北侧商业立面则以黑白灰为基础色调,配以金属赭石色的格栅,体现着设计师的独到匠心。颜色、比例、纹理以及美学的众多方面同时来自于建筑的细部,通过建筑节点的精密组合,处处彰显着示范区的时尚活力。运用现代建筑材料并通过先进的建筑处理手法,使形态更有了生命力与时尚感。



设计尊重现有的场地资源及周边人流导向,布局规整有序,错落有致,以丰富的形态变化形成灵动的整体形象,并使得建筑与用地得以最大化的串联。就像StevenHoll说的,建筑与基地间应当有着某种经验上的联系,一种形而上的联系,一种诗意的连结。



