项目业主:南京瀚威房地产开发有限公司
项目类型:办公、公寓、商业
项目地点:江苏南京
整体规模:170,642M²
用地面积:17,595M²
设计时间:2015-2019
项目阶段:建设中

大型城市综合体以其土地的集约利用、业态的综合齐全和城市地标等特点,在飞速的城市化进程中起到不可忽视的作用。
南京瀚瑞中心在设计之初就承载着引领南京南站新城飞速发展的使命,地处南京南站以北1000米以内的核心地段,汇聚:办公、LOFT、空中会所、商业集群、酒店式公寓五大引擎业态于一体,作为区域内首个高端城市综合体,在方便群众生活,引领消费潮流,完善城市功能,繁荣地域经济等方面发挥重要作用。
一艘“商业巨舰”正开动马力“扬帆启航”,南京瀚瑞中心将以蓬勃的姿态迎接未来。



基于项目所处区域的独特性与南京南站地区发展目标的协调性,建筑整体定位为具有地标性质的多元化综合体,以填补地区此类商业模式的空白,拉动区域化发展进程。把开放的广场空间作为展示商业形象和城市形象的积极平台,为市民提供交往与互动环节更好融合的开放场所,为区域性地标的形成提供多元化支撑。



在这一理念的基础上,我们进行了多种探索,力图将各种功能布局达到最佳的组合形式。
帆|Office Tower



形体生成
“乘风破浪会有时,直挂云帆济沧海”。立帆竞航的创意象征着瀚瑞企业的雄心壮志。
以帆为造型母体,双帆竞渡,垂直上升,相互扶持,将150m办公塔楼塑造为具有挺拔感的咬合形态,体块的变化位置正好与黄金分割比例相吻合。
屋顶会所集空中花园、私密接待、高端定制服务于一体,“凝聚”于帆顶,沉浸于“一览众山小”的快意。


大“叶”有成 塔楼底部,10米通高的大堂洁白通透,一片大“叶”贯穿内外,取意曾国藩名言:“古之成大业者,多自克勤小物而来。百尺之楼,基于平地” 寓意大业有成,成为本项目极具个性的展示点。



细部刻画
设计摈弃单一反复的做法,以点、线、面相结合的总图格局,错落有致的布置各项功能,描绘出流畅的城市天际,让顾客获得最佳的购物体验、使居者获得最佳景观感受。
立面设计顺应城市周边态势的变更,以几经推敲的经典尺度比例,诠释兼建筑的现代气息。不同色调的金属铝板与配比得当的灰色色玻璃相互协调,呼应新都市的现代繁华。
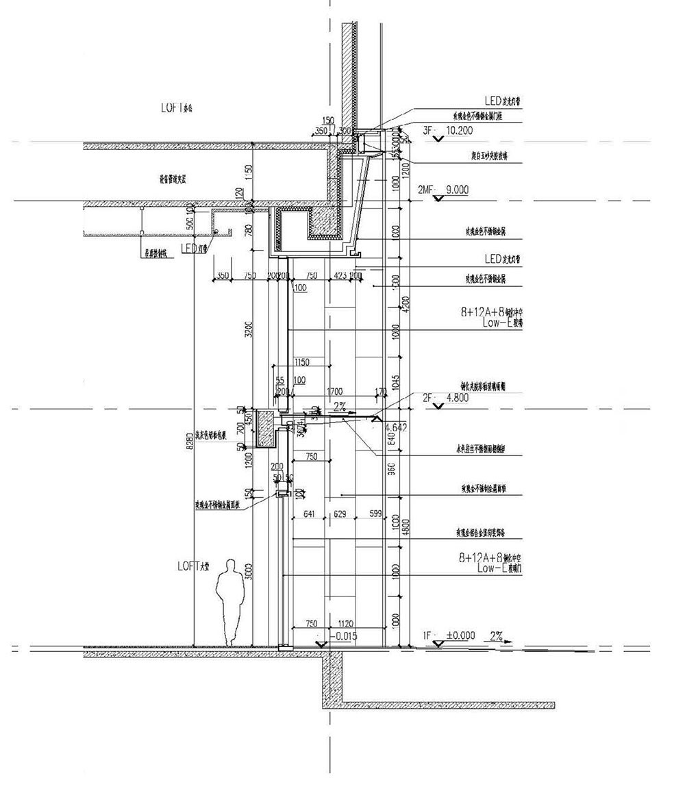
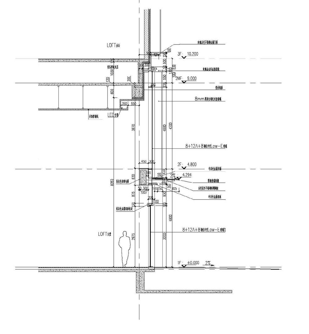
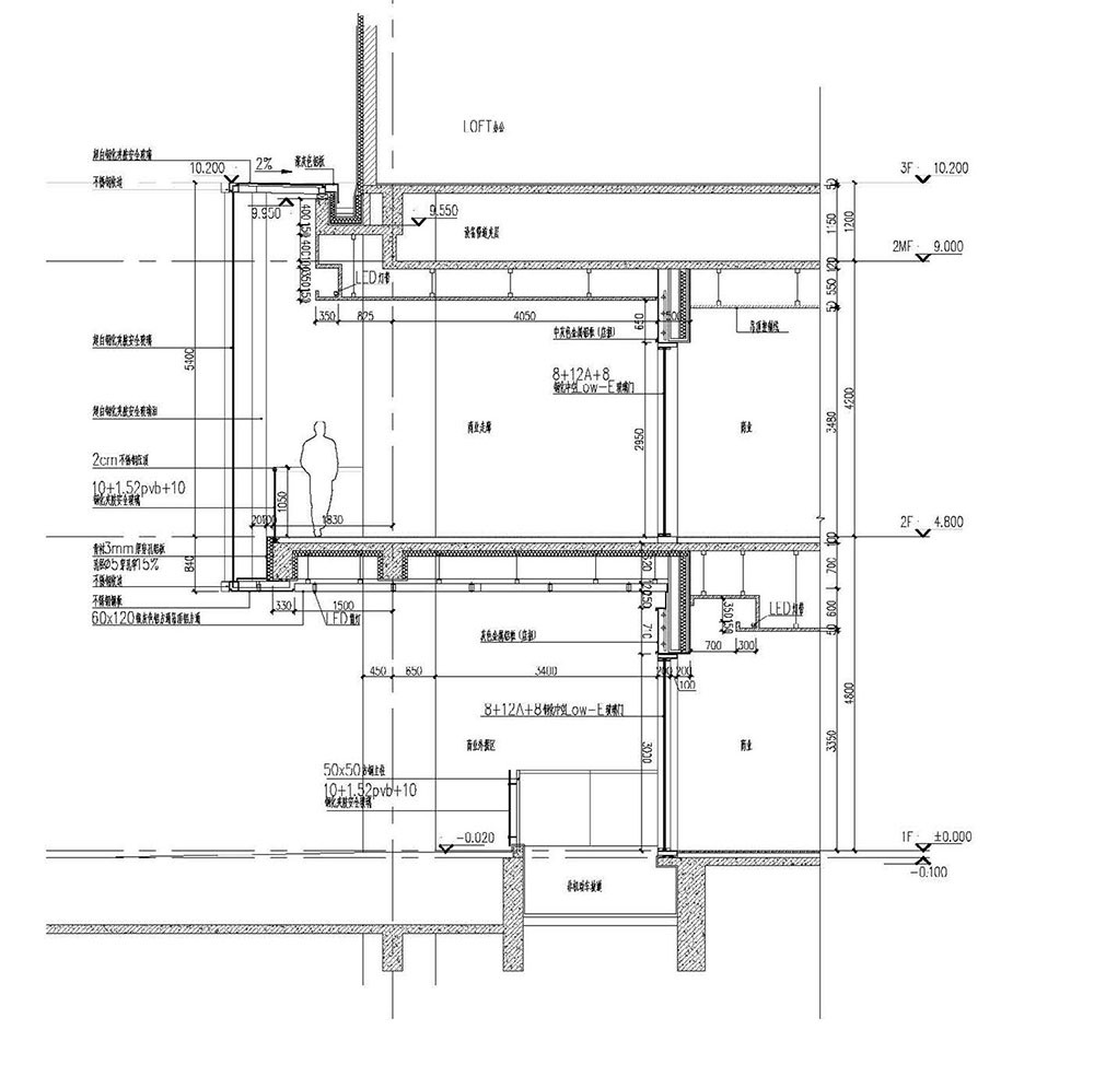
建筑细节作为主体建筑的点晴之处,因其近人尺度以及特定观察的距离尤能彰显一个建筑的品质。我们通过对效果图、三维模型及墙身大剖等细节一步步的推敲设计,精心打造出一个简洁大气而不失细致的建筑立面。








井然有序的逻辑把控与和缓丰富的立面组织,始终贯穿设计前后,呼应城市的丰润所在。
从塔楼简练线条的拉伸,强调形态的挺拔,到内院一侧的体块的提炼,表达建筑的厚重与轻盈,古典与现代的和谐交相呼应,在不同维度上提升基地与城市构架间的融洽感和丰富度。
















结语
南京瀚瑞中心,从中标到即将呈现历时五年,JHD的精心设计获得了业主的认可与大力支持,我们希望我们的设计能赋予项目以独特的气质,通过几经考量的设计手法以及精工细作的节点刻画来追求更高的品质和完成度。对于地处繁华都市核心的南京瀚瑞中心,我们始终秉承城市与建筑,建筑与生活和协共生的积极态度来弘扬新都市的蓬勃生机。